Sold
Merihaukka E
Nuottalahdentie 1, 02230 Espoo
The homes for sale at Merihaukka in Espoo are set in the tranquility of Nuottalahti, right by the shoreline. This new development comprises five two-storey detached houses built from northern timber-a durable, timeless material. At Merihaukka, mornings can start on the seaside path, with a cold-water dip, or with a quiet moment in the nearby park-all within walking distance. Spacious floor plans and high-quality materials make everyday living comfortable and functional. Each home with ground-source heating is finished individually: you can choose the colours, surface materials, and built-in cabinetry to suit your style. Merihaukka brings together closeness to nature, everyday convenience, and the quality of modern timber construction-at a unique address: Nuottalahdentie 1.
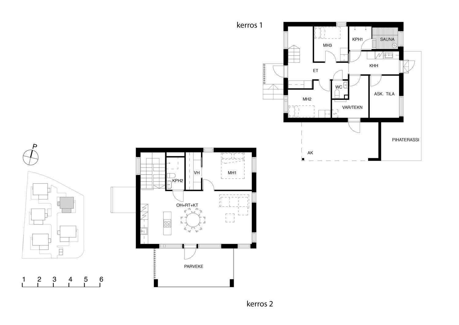
Size 5 rooms + kitchen + utility room + sauna + storage
Surface area: 115 m2
Apartment type: Detached house
Stage: Pre-marketing
Completion: Kesä 2026
Kauppahinta: 223 600 €
Trade price: 335 400 €
Debt-free price: 559 000 €
Est. treatment fee €/month: 196,65 €
Estimated housing company loan payment €/month: 851,08 €
Estimated housing company loan payment, incl. repayment €/month: 2 015,66 €
Est rental price for the plot €/month: 866,82 €
Plot: Optional rental plot, redemption from 173 364,32 €











