Booked
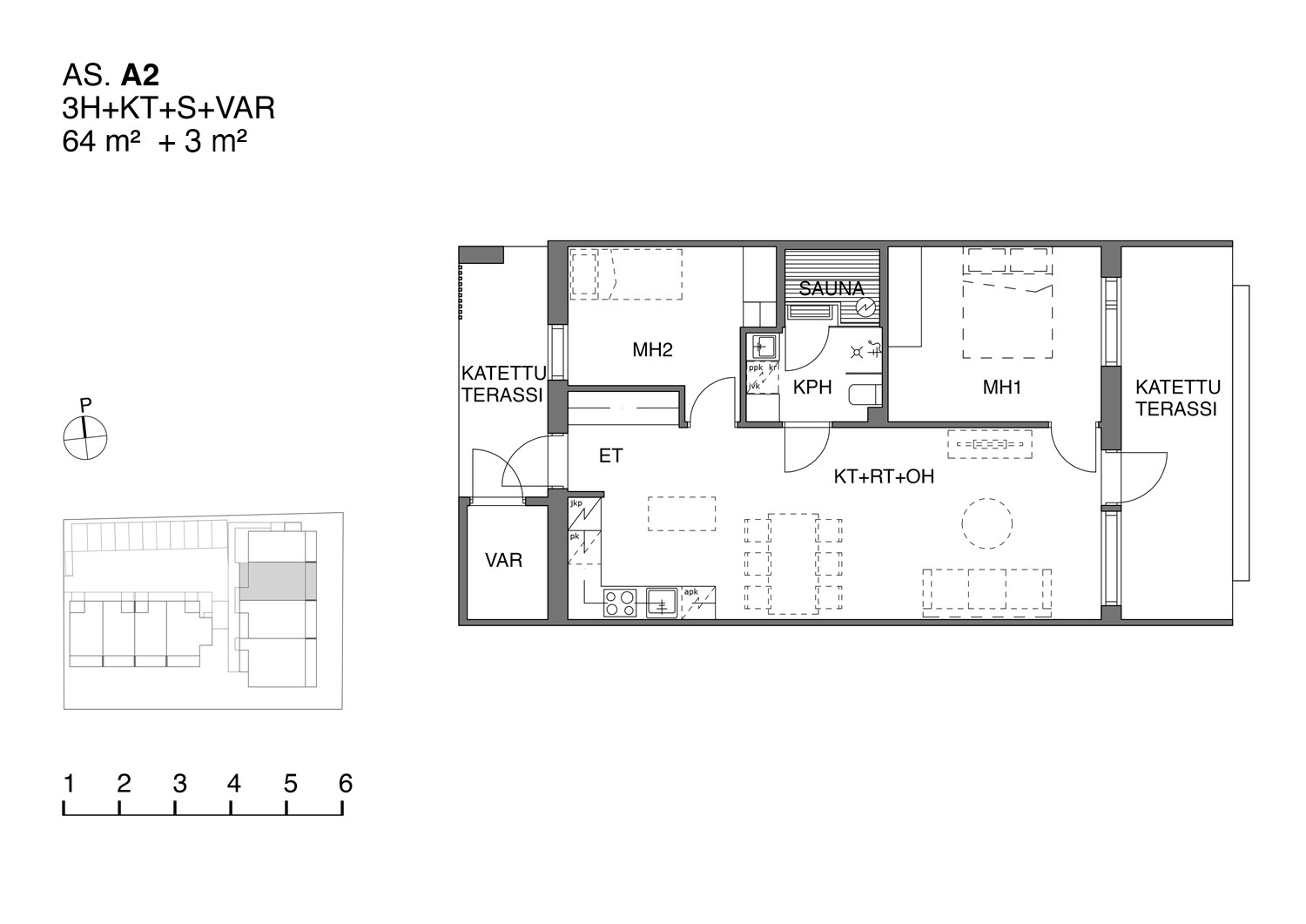
Vantaan Pajulintu apt A2
Kurjenpolventie 4, 01300 Vantaa
The apartment for sale in Vantaa Pajulintu is located in the predominantly low-rise Viertola neighborhood, where the greenery and charm of the area meet the conveniences of everyday life. In Pajulintu, you can relax on the trails of Tikkurila Central Park, enjoy the facilities of Tikkurila Sports Park, or spend a quiet moment in your own yard – surrounded by the peacefulness of the neighborhood.
This geothermal home features bright rooms, a covered terrace, a separate storage unit, and high-quality material choices that make everyday living smooth and pleasant. The apartment’s colors, surface materials, and fixed furnishings can be chosen according to the buyer’s wishes up to a certain stage of construction.
Size 3 rooms + kitchen + storage
Surface area: 64 +3
Apartment type: Terraced house
Stage: Pre-marketing
Completion: End of 2026
Kauppahinta: 103 600 €
Trade price: 155 400 €
Debt-free price: 259 000 €
Est. treatment fee €/month: 118,40 €
Estimated housing company loan payment €/month: 419,84 €
Estimated housing company loan payment, incl. repayment €/month: 959,42 €
Est rental price for the plot €/month: 270,14 €
Plot: Optional rental plot, redemption from 60 030,98 €











