Apartments for sale
Housing company Espoon Tunturipöllö
Kruununtie 9, 02180 Espoo
SOLD OUT The apartments for sale in Espoon Tunturipöllö are being built in Mankkaa – a peaceful and highly valued area where lush outdoor trails and excellent connections across the Helsinki metropolitan region start right at your doorstep. This new development, consisting of six two-story semi-detached homes, is built from northern wood, bringing a sense of nature and timeless quality to the residences. The spacious layouts, along with high-quality and durable material choices, make living comfortable and enjoyable. Each geothermal home is finished individually with color, surface material, and fixed furnishing selections tailored to your style.
Size: 108 m²
Apartment type: Semi-detached house
Plot: Optional leasehold plot, redemption from 146 419, 17€
Debt-free price: from. 459 000,00 €
Location: Espoo, Mankkaa
Completion: May 2026, under construction
Step: On sale
Comfortable living with thoughtful solutions
A generous terrace and a large yard extend your living space.
A separate storage room and utility room, along with single-storey layouts, make everyday life easier.
Well-designed, high-quality Puustelli kitchens.
Premium material options to create a home that reflects your style.
Comfortable living and effortless everyday life
The homes in Tunturipöllö have been designed with timeless and sustainable choices. With a high-quality selection of colors, surface materials, and fixed furnishings, each residence can be tailored into a home that truly reflects its residents.
Apartments for sale
Sold
A1
Rooms
4 rooms + kitchen + utility room + sauna + storage
Surface area
108 m2
Sold
A2
Rooms
4 rooms + kitchen + utility room + sauna + storage
Surface area
108 m2
Sold
B3
Rooms
4 rooms + kitchen + utility room + sauna + storage
Surface area
108 m2
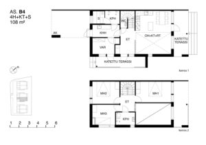
Sold
B4
Rooms
4 rooms + kitchen + utility room + sauna + storage
Surface area
108 m2
Sold
C5
Rooms
4 rooms + kitchen + utility room + sauna + storage
Surface area
108 m2
Sold
C6
Rooms
4 rooms + kitchen + utility room + sauna + storage
Surface area
108 m2
Make a preliminary reservation or contact us









