Vapaa
Espoon Lumikiuru D6
Matkakuja 8, 02940 Espoo
Espoon Lumikiurun asunnossa on tehty kestäviä ja laadukkaita valintoja – kuten parkettilattiat, listattomat ikkunat ja kookkaat terassit. Lopputuloksena on valoisa koti, jossa on avara olohuone ja keittiötila, erillinen varasto ja kodinhoitohuone sekä käsin tehty, lasiseinäinen sauna. Väri-, pintamateriaali – ja kiintokalustevalikoimalla jokainen asukas voi osaavien asiantuntijoidemme kanssa rakentaa oman näköisensä kodin tiettyyn rakentamisen vaiheeseen saakka.
Lisämaksusta koti voidaan toteuttaa eri pohjaratkaisuilla. Asunnon yksi huoneista voi esimerkiksi olla työhuone tai vaatehuone. Tilojen käyttötarkoitusta voi myös vaihdella vuosien saatossa: makuuhuoneen voi muokata joko toiseksi työtilaksi, vierashuoneeksi, tai vaikkapa harrastustilaksi.
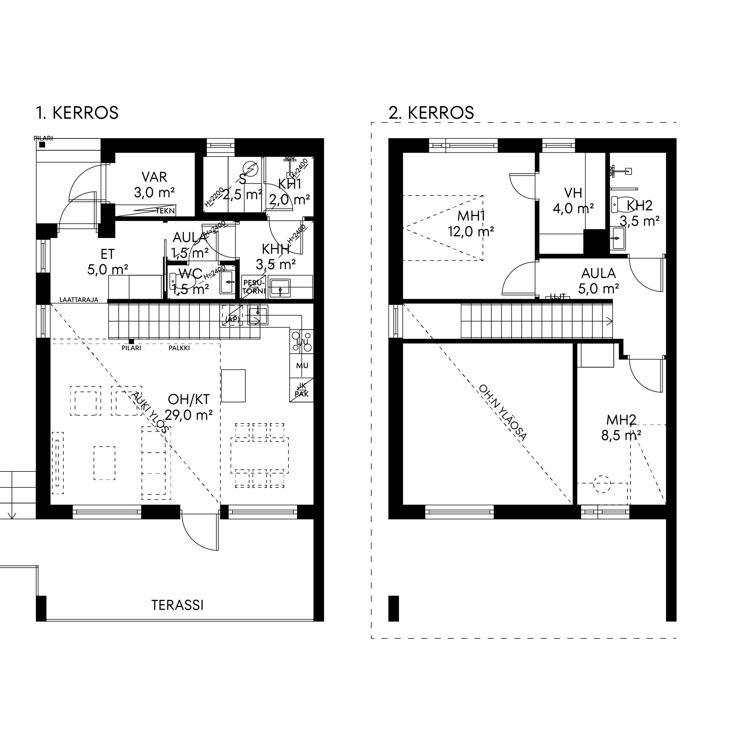
Koko 3h+k+s+khh+var
Asuinpinta-ala: 83+3
Asuntotyyppi: Paritalo
Vaihe: Ennakkomarkkinoinnissa
Valmistuminen: Alkuvuosi 2027
Kauppahinta: 147 600 €
Lainaosuus: 221 400 €
Velaton hinta: 369 000 €
Arv. hoitovastike €/kk: 166 €
Arv. rahoitusvastike lyhennysvapaan aikana €/kk: 611,80 €
Arv. rahoitusvastike lyhennysten alkaessa €/kk: 1 380,55 €
Arv. tontin vuokravastike €/kk: 563,02 €
Tontti: Valinnainen vuokratontti, lunastus alk. 112 603,12 €
Lataa materiaalipaketti




