Myyty
Helsingin Pellavasiipi C
Pellavakaskentie 11, 00650 Helsinki
Pellavasiivessä voit rentoutua Käpylän metsäpoluilla, Oulunkylän virkistysalueilla tai rauhallisella hetkellä omassa pihassa – alueen seesteisestä luonteesta nauttien. Maalämpökotien avarat makuuhuoneet, erillinen kodinhoitohuone, varasto, autokatos, muuntuva pohja sekä laadukkaat materiaalivalinnat tekevät arjesta sujuvaa ja viihtyisää. Jokaisen asunnon värit, pintamateriaalit ja kiintokalusteet valitaan asukkaan toiveiden mukaisesti.
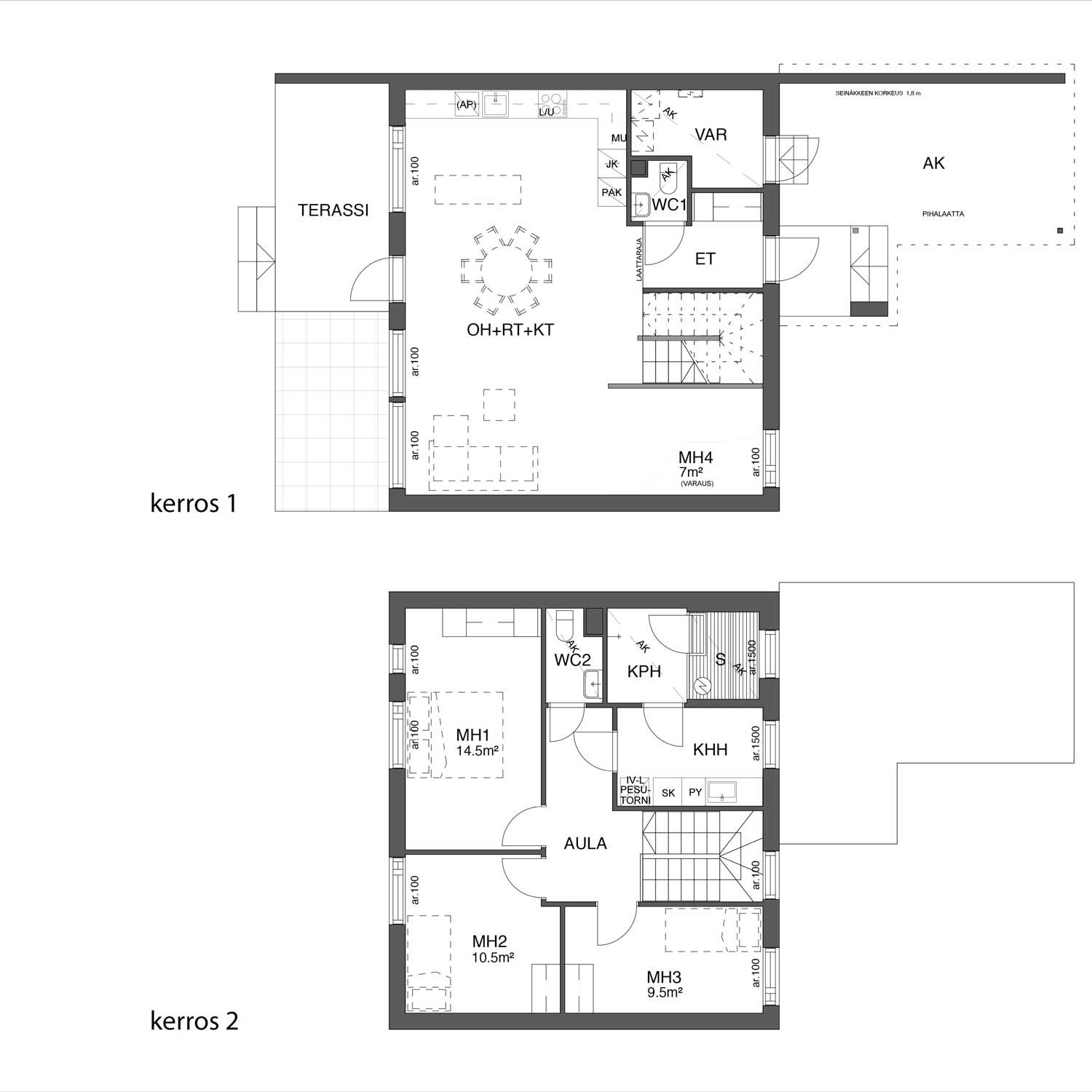
Koko 5h+kt+khh+s+var+ak
Asuinpinta-ala: 117 m²+5 m²
Asuntotyyppi: Erillistalo
Vaihe: Rakenteilla
Valmistuminen: Loppuvuosi 2026
Kauppahinta: 215 600 €
Lainaosuus: 323 400 €
Velaton hinta: 539 000 €
Arv. hoitovastike €/kk: 221,90 €
Arv. rahoitusvastike lyhennysvapaan aikana €/kk: 826,29 €
Arv. rahoitusvastike lyhennysten alkaessa €/kk: 1 998,03 €
Arv. tontin vuokravastike €/kk: 1 201,67 €
Tontti: Valinnainen vuokratontti, lunastus alk. 240 333,33 €
Lataa materiaalipaketti










