Apartments for sale
Housing company Espoon Lintulehto
Juppinlaita 11, 02780 Espoo
The apartments for sale in Espoon Lintulehto are located in Kurttila, where the tranquility of natural surroundings meets the comforts of urban life. The new development consists of four two-story semi-detached homes and one two-story detached house, all built from northern wood. In Lintulehto, you can relax at nearby beaches, nature reserves, and hiking trails – or simply enjoy a peaceful moment in your own yard. The geothermal homes feature spacious layouts, a separate utility room and walk-in closet, as well as high-quality material selections that make daily living smooth and enjoyable. The colors, surface materials, and fixed furnishings of each home are chosen according to the resident’s preferences. Lintulehto offers convenient everyday living and modern wooden construction in a prime location at Juppinlaita 11. The preliminary debt-free selling price for the apartments on a leasehold plot starts from 390,000€.
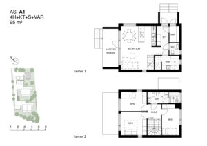
Size: 95 m²
Apartment type: Detached house, Semi-detached house
Plot: Optional leasehold plot, redemption from 99 882,65€
Debt-free price: from. 409 000,00 €
Location: Espoo, Kurttila
Completion: November 2026
Step: On sale
Comfortable living with thoughtful solutions
A generous terrace and a large yard extend your living space.
A separate storage room and utility room, along with single-storey layouts, make everyday life easier.
Well-designed, high-quality Puustelli kitchens.
Premium material options to create a home that reflects your style.
Effortless everyday living in a village-like neighborhood
The geothermal homes of Espoo Lintulehto have been designed with timeless and sustainable choices. Located in the cozy district of Kurttila, these two-story homes make it easy to feel at home and find balance between activity and relaxation.
Apartments for sale
Sold
A1
Rooms
4 rooms + kitchen + sauna + strorage
Surface area
95 m2
Sold
B2
Rooms
4 rooms + kitchen + sauna + strorage
Surface area
95 m2
Sold
B3
Rooms
4 rooms + kitchen + sauna + storage
Surface area
95 m2
Available
C4
Rooms
4 rooms + kitchenette + sauna + storage
Surface area
95 m2
Trade price
155 600 €
Debt-free price
389 000 €
Treatment fee
275,50 €
Land rental fee
499,20 €
Land purchase price
99 840 €
Available
C5
Rooms
4 rooms + kitchen + sauna + storage
Surface area
95 m2
Trade price
163 600 €
Debt-free price
409 000 €
Treatment fee
275,50 €
Land rental fee
499,20 €
Land purchase price
99 840 €
Make a preliminary reservation or contact us











