Myytävät asunnot
Helsingin Pohjantikka
Osuuskunnantie 2, 00680 Helsinki
Helsingin Pohjantikan myytävät asunnot sijaitsevat Itä-Pakilassa, jossa vehreä luonto ja kattavat lähipalvelut kohtaavat. Uudiskohde koostuu kolmesta yksikerroksisesta rivitalokodista, jotka on rakennettu kestävästä pohjoisen puusta. Pohjantikassa voit rentoutua lukuisissa lähipuistoissa, uimarannoilla, pyöräretkellä Keskuspuistossa tai rauhallisella hetkellä omassa pihassa. Maalämpökotien avarat pohjaratkaisut, hyvät varastotilat, erillinen kodinhoitohuone ja laadukkaat materiaalivalinnat tekevät arjesta sujuvaa ja viihtyisää. Jokaisen asunnon värit, pintamateriaalit ja kiintokalusteet valitaan asukkaan toiveiden mukaisesti. Pohjantikka yhdistää toimivan arjen ja nykyaikaisen puurakentamisen – halutulla sijainnilla Osuuskunnantie 2:ssa.
Koko: 91,5 m²
Asuntotyyppi: Rivitalo
Tontti: Valinnainen vuokratontti, lunastus 179 457,67 €
Velaton hinta: alk. 399 000,00 €
Sijainti: Helsinki, Itä-Pakila
Valmistuminen: Lokakuu 2026
Vaihe: Myynnissä
Viihtyisää asumista laadukkailla ratkaisuilla
Kookas terassi ja piha laajentavat omaa asuintilaa
Erillinen khh ja isot varastotilat takaavat sujuvan arjen
Hyvin suunnitellut ja korkealaatuiset Puustellin keittiöt
Materiaalivaihtoehdot kestävät aikaa ja katsetta
Sujuvaa arkea luonnon ja kaupungin kainalossa
Pohjantikan kotien suunnittelussa on tehty ajattomia ja kestäviä valintoja. Jokaisesta asunnosta tulee asukkaidensa näköinen koti korkeatasoisen väri-, pintamateriaali – ja kiintokalustevalikoiman avulla.
Lataa materiaalipaketti
Myytävät asunnot
Varattu
A
Huoneita
4h+kt+kph+s+var
Pinta-ala
91,5
Kauppahinta
171 600 €
Velaton hinta
399 000 €
Hoitovastike
269,93 €
Tontin vuokravastike
747,74 €
Tontin lunastushinta
179 457,67 €
Myyty
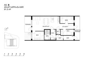
B
Huoneita
4h+kt+kph+s+var
Pinta-ala
91,50 m2
Myyty
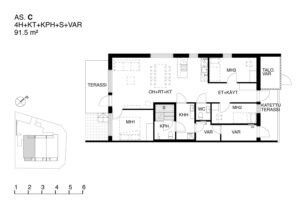
C
Huoneita
4h+kt+kph+s+var
Pinta-ala
91,50 m2
Tee alustava varaus tai ota yhteyttä








